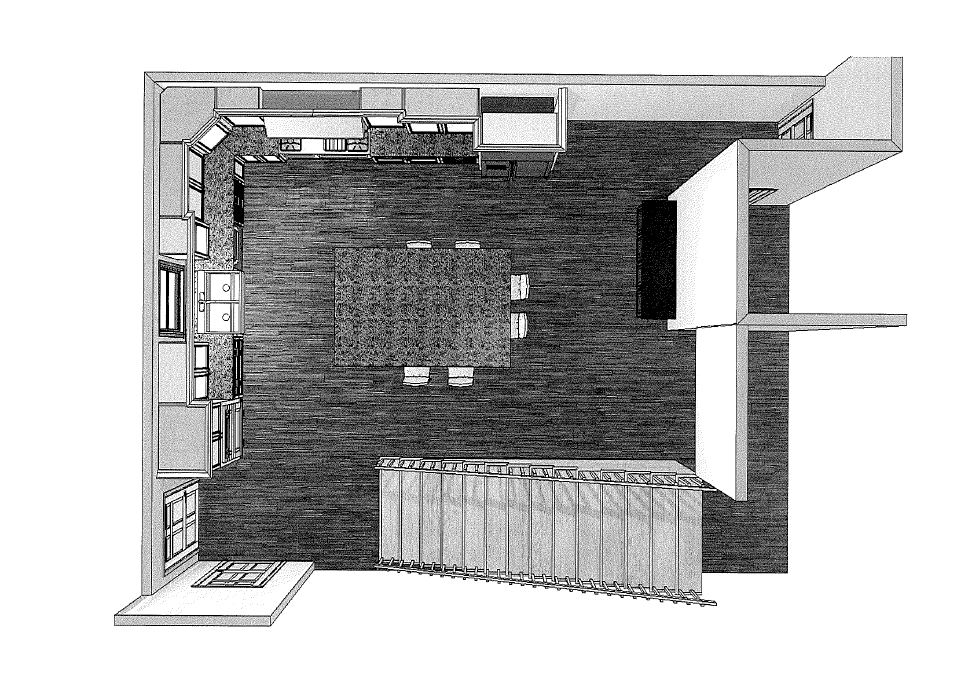
Project
Kitchen Remodel North Liberty, Iowa
Features
- Ultrakraft Cabinets
- Frisco Door, Maple Wood
- Island and Wood Hood
- Boston Door - Cherry Wood, Peppercorn Stain
- 3 CM Countertops
- Natural Stone / Giallo Verona / Eased Edge
- No Backsplash
- Island - LG Hausys Viatera Quartz / Antique Limestone / Ogee Edge
- Jeffrey Alexander hardware - Cosgrove Collection
- Price Range - $$$
Images






3D Render Images



